Au cœur de La Côte
QUOI ?
Réagencement du rez-de-chaussée d'une maison de village pour créer une grande cuisine.
OU ?
La Côte Vaudoise
QUAND?
2025
Réagencement du rez-de-chaussée d'une maison de village pour créer une grande cuisine.
OU ?
La Côte Vaudoise
QUAND?
2025
Surface: 52m2
Mission:
Mes clients ont acheté et emménagé depuis peu dans cette ancienne remise rénovée il y a 10 ans. Ils souhaitent remplacer la petite cuisine existante, installée en couloir, par une grande cuisine conviviale dans un espace intégrant la pièce adjacente (étude pour abattre en partie le mur porteur déjà faite). Créer beaucoup de rangements, un espace pour prendre l'apéro et un petit coin salon (le salon principal étant au 1er étage). Ils souhaitent une cuisine lumineuse et intemporelle, et si possible conserver la possibilité de mettre un poêle à bois.
Mes clients ont acheté et emménagé depuis peu dans cette ancienne remise rénovée il y a 10 ans. Ils souhaitent remplacer la petite cuisine existante, installée en couloir, par une grande cuisine conviviale dans un espace intégrant la pièce adjacente (étude pour abattre en partie le mur porteur déjà faite). Créer beaucoup de rangements, un espace pour prendre l'apéro et un petit coin salon (le salon principal étant au 1er étage). Ils souhaitent une cuisine lumineuse et intemporelle, et si possible conserver la possibilité de mettre un poêle à bois.
Démarche et conception:
Trouver une implantation de la cuisine tenant compte de l'écoulement existant, difficilement déplaçable sans gros travaux. La solution proposée crée une cuisine avec un grand îlot regroupant les fonctions principales et marque mieux l'entrée en y intégrant des rangements qui vont mieux isoler l'escalier. Miser sur le bois et le blanc avec des touches de couleurs chaudes, notamment avec les fauteuils du coin café prés de la fenêtre et le grand banc coloré dans l'entrée.
Trouver une implantation de la cuisine tenant compte de l'écoulement existant, difficilement déplaçable sans gros travaux. La solution proposée crée une cuisine avec un grand îlot regroupant les fonctions principales et marque mieux l'entrée en y intégrant des rangements qui vont mieux isoler l'escalier. Miser sur le bois et le blanc avec des touches de couleurs chaudes, notamment avec les fauteuils du coin café prés de la fenêtre et le grand banc coloré dans l'entrée.
Réalisation en cours

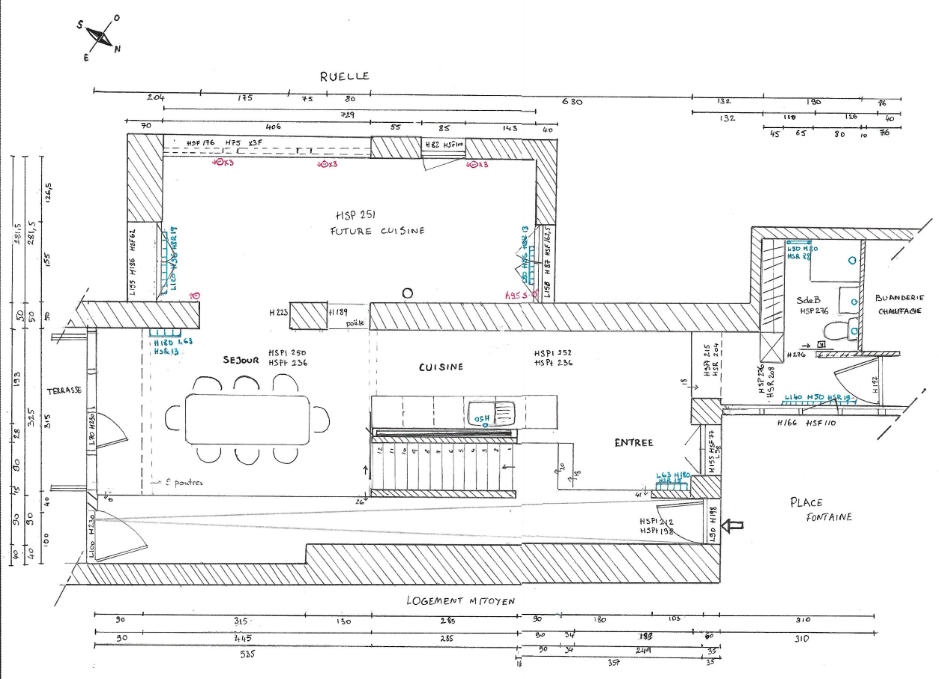
Plan de l'existant. La cuisine est dans un couloir, empiétant sur l'entrée, avec peu de lumière et peu de rangements. Le plan de travail est petit et il n'y a ni d'emplacement pour un frigo, ni pour un micro-ondes.

Proposition d'aménagement retenue avec un grand îlot perpendiculaire à l'escalier. Cette configuration change la circulation depuis l'entrée, et redonne finalement une fonction au couloir à gauche de l’escalier rarement utiliser aujourd'hui.


Vue existante en entrant dans la maison. L'entrée n'est pas délimitée, la cuisine semble être posée dans le couloir; Le visiteur hésite quant au cheminement .


Réaménagement de l'entrée. Intégration de rangements peu profonds près de l'evier, idéal pour les bocaux et provisions, et rangement bibliothèque ouverts au niveau de l'escalier. Long banc avec rangements, liant l'entrée et la cuisine, pouvant aussi servir de coin lecture.

Vue sur la salle à manger depuis le futur coin salon. Dans le projet la salle à manger reste dans cet espace, mais il serait possible d'intervertir sa position avec le coin salon.

Pièce attenante où sera aménagé la cuisine. Le radiateur et poêle seront supprimés. Le mur derrière le poêle sera en partie abattu.

Aménagement proposé pour la cuisine. Meubles blanc et plan de travail imitation bois. Coin petit électroménager et café sous la fenêtre.

Vue sur le jardin depuis l'évier.
